0%
1213-A University Avenue, Berkeley, CA
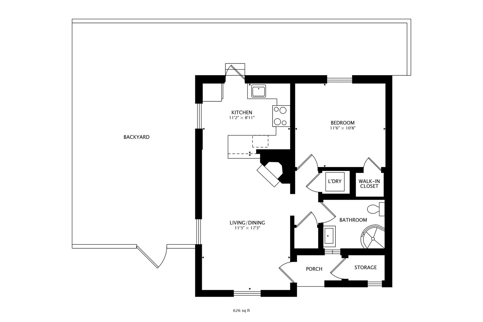
Large one bedroom unit with private yard To book a tour, please inquire on this listing and you will receive a link to schedule. If you found us on Craigslist, please schedule your tour here: http://schedule-a-tour.com/lc/9a2778c0f5 The spacious 626 sq. ft. apartment home has 1 bedroom and 1 bathroom, in addition to a huge private yard, a spacious and sunny living room, kitchen with quartz countertops and new stainless steel appliances, a spacious bathroom, and new in-unit washer/dryer machines. The apartment home comes with a reserved on-site parking space and its own private storage closet next to their front door. The property also has multiple landscaped outdoor areas for resident use and secured on-site garages that are available for an additional fee. Location: University Avenue and Chestnut Street, Berkeley, CA 94702 The listed rent of $2,470 is the average monthly rent of a 12-month lease with a $2,695 base rent a one month of free rent. The apartment home has been completely remodeled and features the following: -- Large private and sunny yard. -- Modern kitchen new quartz countertops, cabinetry, and stainless-steel appliances, including a spacious refrigerator, gas range, and dishwasher. -- New in-unit washer and dryer machines. -- Fresh painting, refinished hardwood flooring, and upgraded lighting throughout the apartment. -- Reserved on-site parking space. -- Multiple additional landscaped outdoor areas for resident use. -- Secured on-site garages are available for an additional fee. -- Managed by a local and professional full-service property management company with an average 4.5-star rating on Yelp. -- Online rent payments and maintenance requests available. The property is conveniently located to amenities including: -- Located a short 9-minute walk to the North Berkeley BART station. -- UC Berkeley is within 1.3 miles and can be accessed via a 11-minute bike ride or a 13-minute bus ride. -- Downtown Berkeley is within a mile and features countless eateries, bars, and retail stores including Blue Bottle Coffee, sweetgreen, Chipotle, Chez Panisse, Ippudo, Tender Greens, and Cheese Board Pizza. -- Target Grocery is located within a block and Trader Joe’s is within 6 blocks. -- The Berkeley Fourth Street shopping and dining district is within a 13-minute walk and features the Apple Store, Crate & Barrel, Peet’s Coffee, and the Market Hall. Resident pays: PG&E, water Landlord pays: Garbage Our rental requirements are: -- Monthly income must be greater than 2x the monthly rent. -- Security deposit is equal to 1 month's rent. If you're interested in scheduling a viewing or want to learn more about the apartment home, please reply to this listing! DRE # 01902745
Property Type
Multi-Family
Deposit
$2,695
Lease Term
Rent: $2,470 | Application Fee: $45 | Security Deposit: $2,695
Pet Policy
Cats allowed, Small dogs allowed
Listed by Twobliving via twobliving.appfolio.com
View on twobliving.appfolio.comCreate a free Fizbo account to save listings, message property managers, and find more rentals in Berkeley.
1607 Prince Street - 5, Berkeley, CA 94703
1607 Prince Street - 5, Berkeley, CA
982 Addison Street, Berkeley, CA 94710
982 Addison Street, Berkeley, CA
2338 Channing Way, Unit 05, Berkeley, CA 94704
2338 Channing Way, Berkeley, CA
1441 University Avenue, Unit 04, Berkeley, CA 94702
1441 University Avenue, Berkeley, CA
2223 Bonar Street, Unit A, Berkeley, CA 94702
2223 Bonar Street, Berkeley, CA
3110 Martin Luther King Jr. Way - A
3110 Martin Luther King Junior Way, Berkeley, CA