0%
1748 N 22nd St - Unit 1, Philadelphia, PA
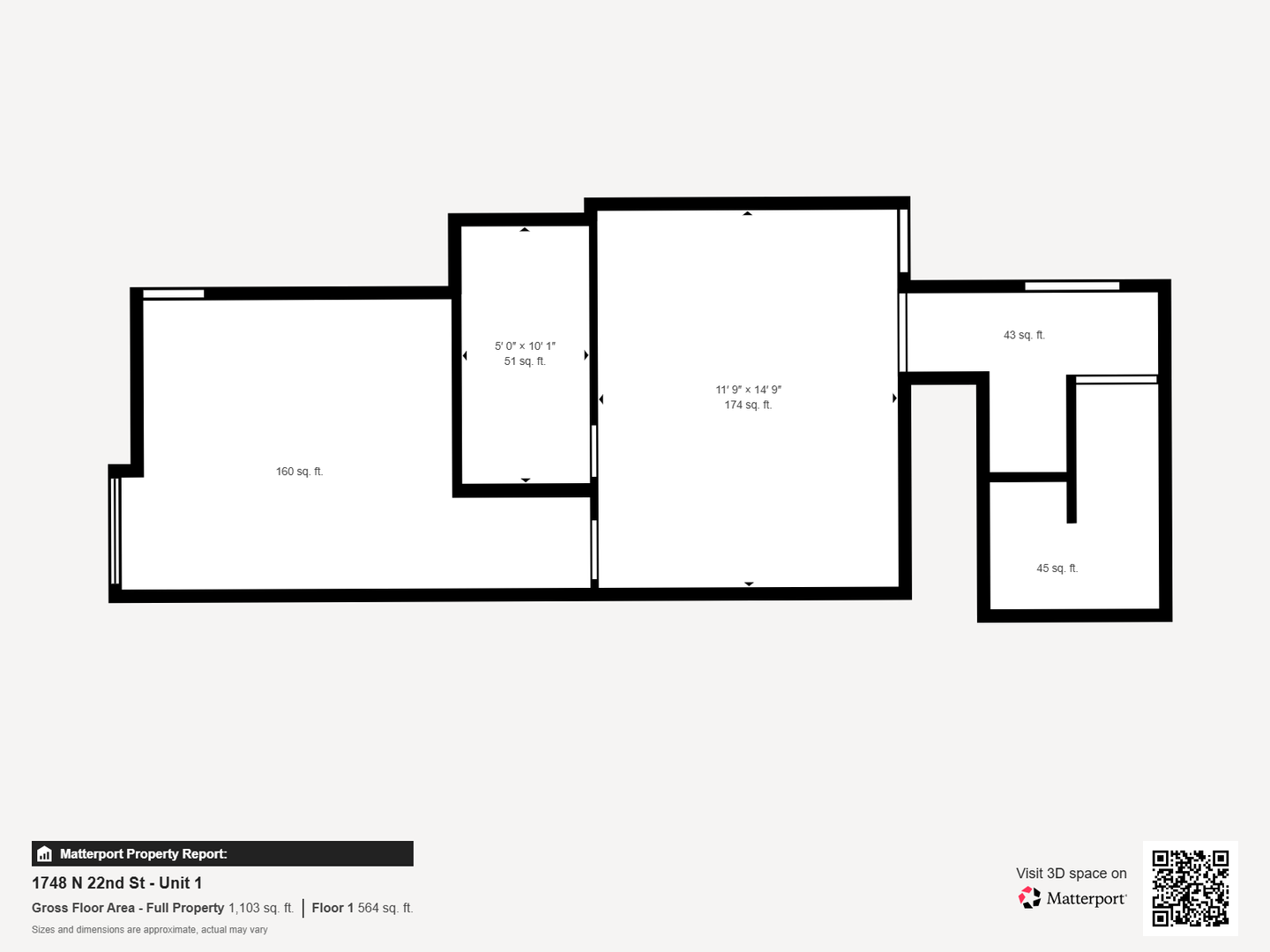
Bi-Level 2 Bedroom Apartment - OK for Section 8 Virtual Tour: https://my.matterport.com/show/?m=6vkP2KwMEc2 This contemporary 930 sq. ft. apartment in Philadelphia showcases a thoughtful design spread across two floors. The lower level, spanning 470 sq. ft., houses a modern kitchen equipped with stainless steel appliances, white cabinetry, and a subway tile backsplash. The kitchen opens to a living area, creating an open-concept layout ideal for entertaining. The upper floor, measuring 450 sq. ft., likely contains bedrooms and additional living space. Throughout the apartment, light wood-look flooring adds warmth and continuity. The bathrooms are a standout feature, boasting luxurious marble-effect tiling on both floors and walls, glass shower enclosures, and sleek white vanities. Storage is ample, with multiple closets featuring louvered doors, ensuring a clutter-free living environment. The apartment's neutral color palette, predominantly white walls and ceilings, creates a bright and airy atmosphere. Recessed lighting and pendant fixtures in the kitchen provide both ambient and task lighting. While the exact room count is unclear, the space appears to be efficiently designed to maximize functionality. The overall aesthetic is clean and modern, appealing to those who appreciate minimalist design with high-end finishes. Qualifications / General Screening Criteria: • Rental applications must be complete, correct and verified. • Gross monthly income must provable and be at least 3 times rent or tenant must have a housing choice voucher. • Applicants must have a proven history of on-time rental payments not including the COVID-19 emergency period. • Applicants must have a good relevant credit history or tenant must have a housing choice voucher. • Applicants must have no evictions in the last 4 years except during the COVID-19 emergency period. Consumer Notice - Real Estate Management Advisors, LLC in an exclusive agent of the landlord. Real Estate Management Advisors, LLC - REMA Licensed Real Estate Broker Property Manager Servicing Commercial & Residential Properties in the Philadelphia area. Check out more properties for rent at http://www.reinfo411.com/residential-properties-for-rent/ Like us on facebook at https://www.facebook.com/REINFO411
Property Type
Multi-Family
Deposit
$1,850
Lease Term
Rent: $1,850 | Application Fee: $49 | Security Deposit: $1,850 | Available Now
Available
Available Now
Pet Policy
Cats allowed, Dogs allowed
Take an interactive 3D walkthrough of this property
Listed by Remanagementadvisors via remanagementadvisors.appfolio.com
View on remanagementadvisors.appfolio.comCreate a free Fizbo account to save listings, message property managers, and find more rentals in Philadelphia.
2110 North 7th Street - 1
2110 North 7th Street - 1, Philadelphia, PA
6021 N Park Ave, 6021 A5, Philadelphia, PA 19141
6021 N Park Ave, Philadelphia, PA
1641 West Venango Street, 1641-Commercial, Philadelphia, PA 19140-4026
1641 West Venango Street, Philadelphia, PA
2113 Wakeling St, Philadelphia, PA 19124
2113 Wakeling St, Philadelphia, PA
5001 Oxford Ave - 101, 101, Philadelphia, PA 19124
5001 Oxford Ave - 101, Philadelphia, PA
1937 E Tioga St, Philadelphia, PA 19134
1937 E Tioga St, Philadelphia, PA